Zurück

Immobilienangebot

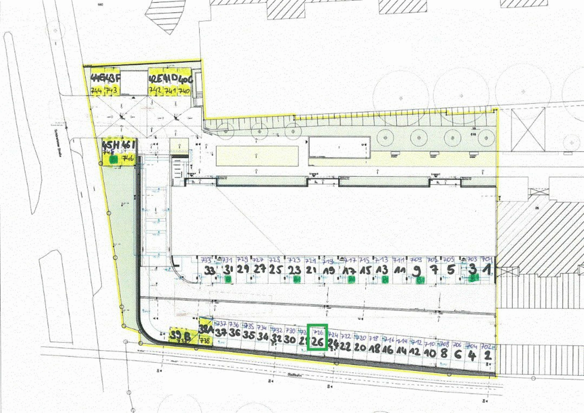
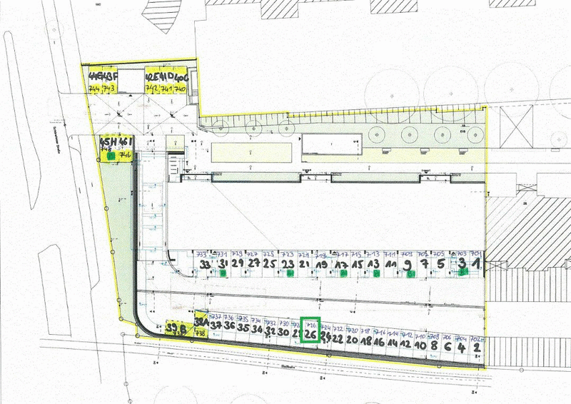
LANGENHAGEN | Carport Nr. 26

Langenhagen- | Tempelhofer Str. 0, 30853 Langenhagen

in Vermietung

  • Gewerbe
Adresse

Tempelhofer Str. 0
30853 Langenhagen

Etage

0

Fläche

-

Zimmer

-

Gesamtmiete

-

Verfügbar ab:

01.10.2025

Objektbeschreibung

Eine ordentliche Kündigung ist aufgrund gegenseitigen Verzichtes erstmalig mit Wirkung zum Ablauf des 12. Monats mit Vertragsbeginn zulässig. Ein Stellplatztausch kann nicht angeboten werden.



Das Carport ist von der Einfahrt aus kommend links und dann mittig auf der rechten Seite.

Interesse? Nehmen Sie Kontakt auf!

Peer Mehrstedt

Vermietservice

vermietservice@gundlach-bau.de

Entspannt Wohnung mieten: Frau in Hängematte

Unser Bewerbungsprozess ist digital!

1. Erstellen Sie auf Everreal ein Suchprofil.
2. Wählen Sie die passende Wohnung aus.
3. Ganz einfach digital bewerben.

Suchprofil erstellen

Erkunden Sie das Umfeld der Immobilie