Zurück

Immobilienangebot

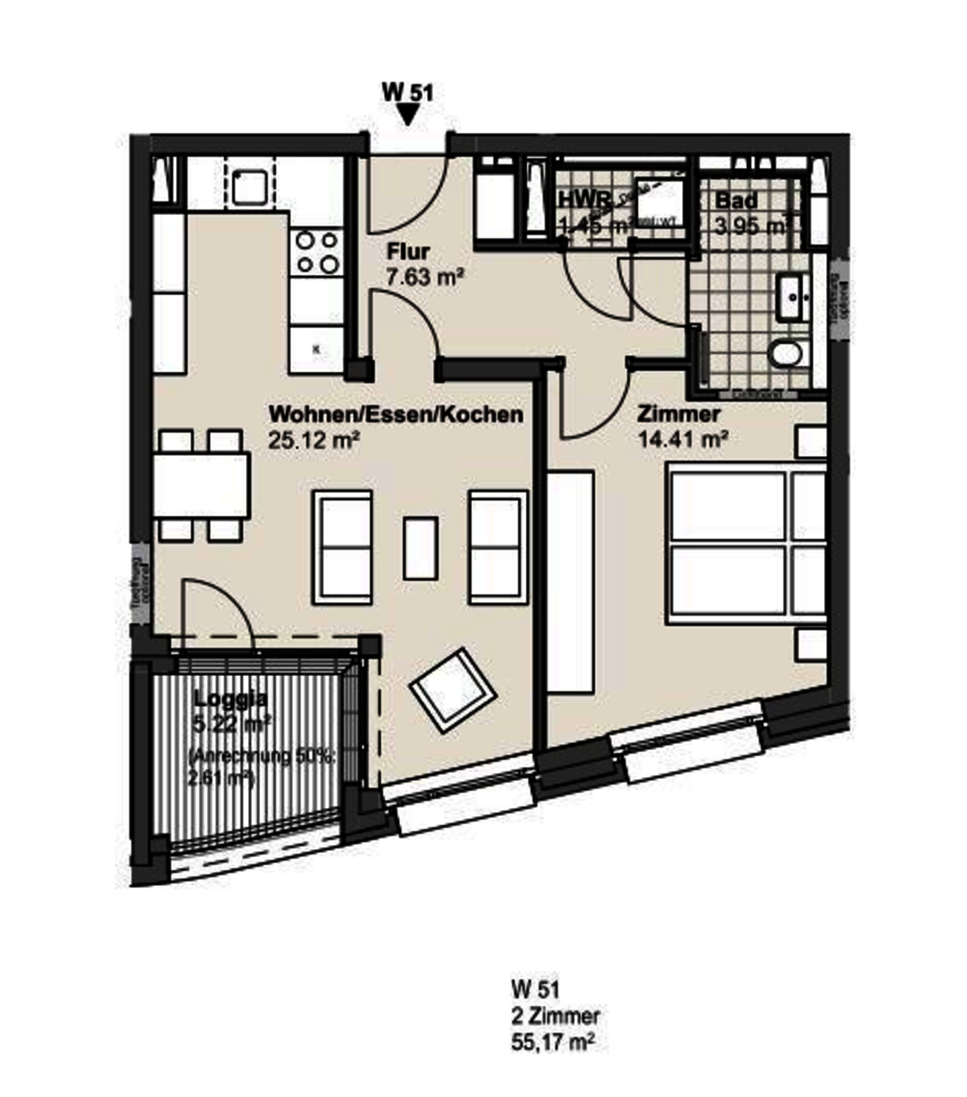
LIST-PELIKAN | ERSTBEZUG | hochwertige 2-Zi.-Whg im 4.OG mit EBK und PKW-Stellplatz

Hannover- | Klopstockstraße 52, 30177 Hannover

in Vermietung

  • Mietwohnung
Adresse

Klopstockstraße 52
30177 Hannover

Etage

4

Wohnfläche

55.17 m²

Zimmer

2

Gesamtmiete

1.456 €

Verfügbar ab:

16.12.2025

Objektbeschreibung

Jetzt Erstbezug sichern – moderne Mietwohnung mit außergewöhnlicher Architektur und hochwertiger Ausstattung

 

Dieses Mietangebot ist Teil unserer Fremdverwaltung.

 

Willkommen im Pelikan-Viertel im begehrten Stadtteil Hannover-List! Hier entsteht mit dem Projekt ZWEI ein einzigartiges Neubau-Ensemble, das mit seiner markanten, ellipsenförmigen Architektur zum neuen Wahrzeichen der Umgebung wird. Urban. Exklusiv. Ihr Zuhause.

 

URBAN.

Das Pelikan-Viertel gehört zu den beliebtesten Stadtteilen Hannovers. Genießen Sie urbanes Wohnen mit kurzen Wegen: Einkaufsmöglichkeiten, Cafés, Restaurants und grüne Erholungsorte wie die Eilenriede und der Mittellandkanal sind nur wenige Minuten entfernt.

 

Die hervorragende Anbindung an den öffentlichen Nahverkehr macht Ihre neue Wohnung auch ohne Auto ideal gelegen.

 

EXKLUSIV.

Von Außen besticht das ZWEI mit einer runden Gebäudeform, diese Architektur ist einmalig in Hannover und prägt das Stadtbild.

Die außergewöhnliche äußere Form findet sich in den Grundrissen wieder: Hier finden Sie ein Zuhause, das so individuell ist wie Sie. Die Exklusivität der Architektur spiegelt sich auch in der Ausstattung wieder: hochwertige Bäder, Parkett- und Fliesenböden mit einer Fußbodenheizung, uvm.

 

IHR ZUHAUSE.

Die 2-Zimmer-Wohnung in Hannover ist ideal für alle, die stilvoll, komfortabel und zukunftsorientiert wohnen möchten. Vor allem Singles und Paare hier ein neues Zuhause mit besonderem Charme.

Erstbezug dieser exklusiven Mietwohnung ist ab Dezember 2025 möglich.

 

HIGHLIGHTS DIESER WOHNUNG:

- Gefragte Lage im 4. Obergeschoss

- 55,17 m² Wohnfläche mit offen gestaltetem Wohn-, Ess- und Kochbereich

- moderne Einbauküche, mit hochwertigen Geräten (inklusive)

- Loggia für entspannte Stunden im Freien

- Bodentiefe Fenster für lichtdurchflutete, freundliche Räume

- Tiefgaragenstellplatz Nr. 80 (inklusive) mit PKW-Aufzug. Der monatliche Mietpreis in Höhe von 120,00 EUR (inklusive Betriebskostenvorauszahlung) ist in der Gesamtmiete enthalten.

- Hochwertige Materialien und Ausstattung in einem architektonisch anspruchsvollen Wohnensemble. Alle Ausstattungsdetails lesen Sie weiter unten.

 

Interesse? Vereinbaren Sie mit uns einen Besichtigungstermin.



IHRE NEUE WOHNUNG – HIGHLIGHTS IM ÜBERBLICK

 

- Neubau-Erstbezug – modern, energieeffizient & bezugsbereit

- Individuelle Grundrisse mit sanft gerundeten Wänden und eleganten Gestaltungsmöglichkeiten

- Einbauküche inklusive – direkt einziehen & wohlfühlen

- Eichen-Dielenparkett von Weitzer, antistatisch & antibakteriell

- Fußbodenheizung in allen Räumen + Handtuchwärmer im Bad

- Hochwertige Bäder mit Spiegel & LED-Spiegelbeleuchtung

- Multimedia-Anschlüsse für entspanntes Homeoffice & Streaming

- Innenliegende Rollos, Sonnenschutzverglasung & 3-fach verglaste Fenster für optimalen Hitzeschutz

- Photovoltaikanlage & Fernwärme für nachhaltiges Wohnen & ein günstiges Mieterstrom-Modell

- Tiefgarage mit Pkw-Aufzug inklusive, Stellplätze mit E-Mobilität-Vorrüstung

- Kellerraum inklusive – für zusätzlichen Stauraum

- Barrierearme Bauweise (Hinweis: Aktuell ist noch kein barrierefreier Zugang bei Besichtigungen vorhanden)

 

TECHNISCHE AUSSTATTUNG:

- Multimediaverkabelung CAT7-Qualität und Glasfaserleitung bis in die Wohnungen

- Video-Türsprechanlage

- Modernes Sonnenschutzsystem mit Textilscreens und innenliegenden Rollos

- KfW-Effizienzhaus 55

- Photovoltaikanlage, kontrollierte Be- und Entlüftungsanlage

- Klimafreundlich Heizen durch Fernwärme

 

IHR NACHHALTIGES ZUHAUSE

- KfW-Effizienzhaus-55: Das KfW-Effizienzhaus 55 benötigt nur 55 Prozent der Energie eines konventionellen Neubaus und ist daher besonders umweltfreundlich.

 

-Photovoltaikanlage mit Mietenden-Strom-Modell: Ein Fernwärme-Anschluss und eine Photovoltaikanlage auf dem Dach ermöglichen eine nachhaltige Energieversorgung. Der nachhaltig durch Sonnenenergie produzierte Strom kann direkt im Haus verbraucht werden und ist im Mietenden-Strom-Modell besonders günstig.

 

- Klimafreundlich Heizen durch Fernwärme: Fernwärme spielt eine zentrale Rolle für eine erfolgreiche Energiewende. Der lokale Energieversorger Enercity setzt zur Produktion grüner Energie und als Ersatz für Kohle und Erdgas verstärkt auf nachhaltige Energieträger wie beispielsweise auf die thermische Verwertung von Restmüll, Klärschlamm und Biomasse.

 

ALLE HIGHLIGHTS IM DETAIL:

Bodenbeläge:

- Fliesenboden (Badezimmer und Hauswirtschaftsraum)

- Parkettboden (Küche, Flur und Zimmer)

 

Küche:

- Einbauküche (Mietpreis in der Gesamtmiete enthalten)

 

Badezimmer:

- bodengleiches Duschbad

- feste Duschabtrennung

- Fliesen im Bad

- Fußbodenheizung im Badezimmer

- Handtuchheizkörper

- Leitungen unter Putz

 

Waschmaschinenstellplatz:

- Waschmaschinenstellplatz im HWR

 

Außenanlage:

- Loggia

 

Besondere Ausstattung der Wohnung:

- Verdunkelungsrollos (ca. 65 % verdunkelnd)

- Hauswirtschaftsraum

- Barrierearm

- Tiefgaragenstellplatz Nummer 80 mit Vorrüstung für E-Mobilität

 

Hausausstattung:

- Gegensprechanlage mit Videofunktion

- PKW-Aufzug

- Personen-Aufzug

- Fahrradabstellraum

- Treppenhausreinigung

- Isolierverglasung

- Dämmung der Außenwände

- Mieterkeller

- Hausanschluss für Kabelfernsehen

- Glasfaser Hausanschluss

 

Heizung:

- Fußbodenheizung (alle Räume)

- Zentralheizung (Fernwärme)

Interesse? Nehmen Sie Kontakt auf!

Peer Mehrstedt

Vermietservice

vermietservice[at]gundlach-bau.de

Entspannt Wohnung mieten: Frau in Hängematte

Unser Bewerbungsprozess ist digital!

1. Erstellen Sie auf Everreal ein Suchprofil.
2. Wählen Sie die passende Wohnung aus.
3. Ganz einfach digital bewerben.

Suchprofil erstellen

Erkunden Sie das Umfeld der Immobilie