Zurück

Immobilienangebot

SEELHORSTER-WOHNHÖFE | Neubau | gepflegtes Reihenhaus auf drei Etagen mit EBK | Baujahr 2017

Hannover- | Inge-Meier-Hof 24, 30519 Hannover

in Vermietung

  • Reihenhaus
Adresse

Inge-Meier-Hof 24
30519 Hannover

Etage

0

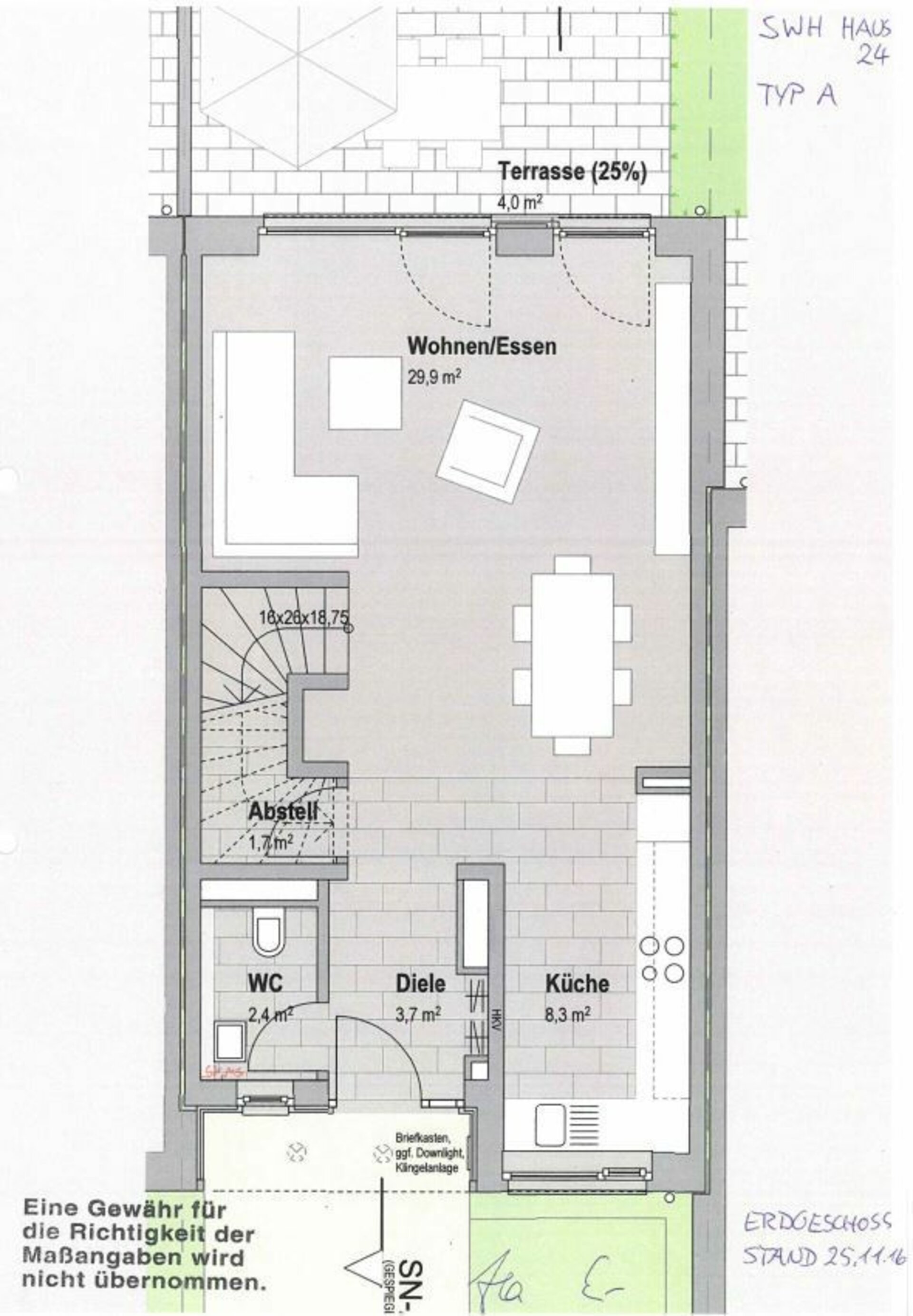
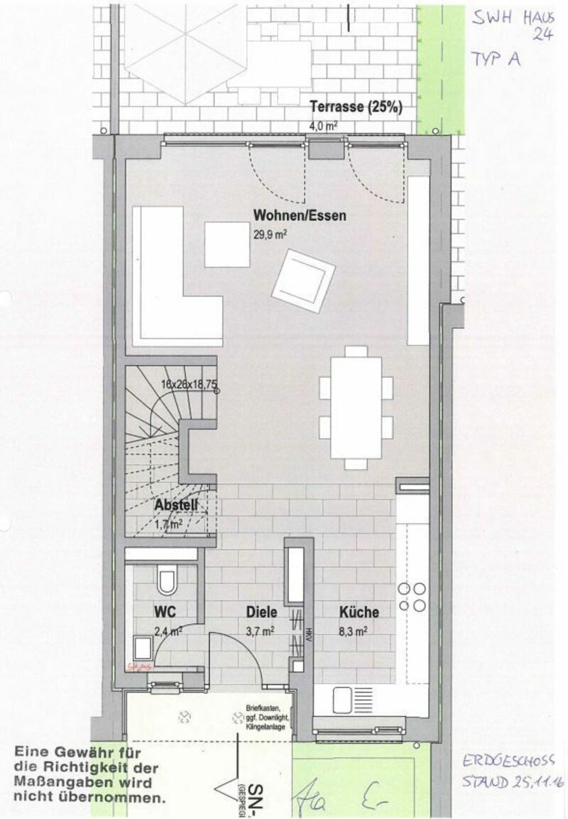
Wohnfläche

125.45 m²

Zimmer

4

Gesamtmiete

2.122 €

Verfügbar ab:

01.11.2025

Objektbeschreibung

Dieses Gebäude wurde 2017 in gewohnter "Gundlach-Qualität" errichtet.

 

Das Haus ist Teil unserer Fremdverwaltung.

 

Ein Carport in unmittelbarer Nähe gehört zum Haus und wird mit vermietet. Der monatliche Mietpreis in Höhe von 70,EUR ist in der Gesamtmiete enthalten.

 

Die Vorauszahlung für die Heiz-/Wasserkosten entrichten Sie direkt an enercity-Contracting.

Fragen zu den Preisen werden Ihnen durch enercity-Contracting beantwortet.

 

Die Einbauküche ist mit guten Küchengeräten ausgestattet und wird zur Nutzung überlassen.

 

Die besonders energetische Bauweise dieses Hauses ist ein herausragendes Merkmal.

 

Wir streben eine Vermietung zum 01.11.2025, spätestens jedoch zum 16.11.2025 an.



HIGHLIGHTS DIESES HAUSES:

Bodenbeläge:

- Fliesenboden

- Parkettboden

 

Ausstattung Küche:

- Einbauküche (wird zur Nutzung überlassen)

 

Ausstattung Badezimmer:

- Badezimmer mit bodengleicher Dusche und Badewanne im 01.OG

- Badezimmer mit bodengleicher Dusche im 02.OG

- Gäste-WC im EG

- feste Duschabtrennung

- Fenster im Bad

- Fliesen im Bad

- Fußbodenheizung im Badezimmer

- Gäste-WC

- Gäste-Badezimmer

- Handtuchheizkörper

- Leitungen unter Putz

 

Waschmaschinenstellplatz:

- Waschmaschinenstellplatz im HWR

 

Außenanlage:

- Terrasse

- Mietereigener Garten

- Geräteschuppen im Garten

 

Besondere Ausstattung des Hauses:

- Carport

 

Hausausstattung:

- Gegensprechanlage

- Fahrradabstellraum

- Isolierverglasung

- Dämmung der Außenwände

- Kabelfernsehen-Hausanschluss

- Glasfaser Hausanschluss

- Multimediaverkabelung im gesamten Haus

 

Heizung:

- Fußbodenheizung (alle Räume und Zimmer)

- Zentralheizung (Fernwärme)

Interesse? Nehmen Sie Kontakt auf!

Peer Mehrstedt

Vermietservice

vermietservice@gundlach-bau.de

Entspannt Wohnung mieten: Frau in Hängematte

Unser Bewerbungsprozess ist digital!

1. Erstellen Sie auf Everreal ein Suchprofil.
2. Wählen Sie die passende Wohnung aus.
3. Ganz einfach digital bewerben.

Suchprofil erstellen

Erkunden Sie das Umfeld der Immobilie