Immobilienangebot

SEELZE | Moderne 3-Zi.-Whg. mit EBK, Galerie, Balkon und Fußbodenheizung

Seelze- | Kolbestraße 2, 30926 Seelze

in Vermietung

  • Mietwohnung
Adresse

Kolbestraße 2
30926 Seelze

Etage

2

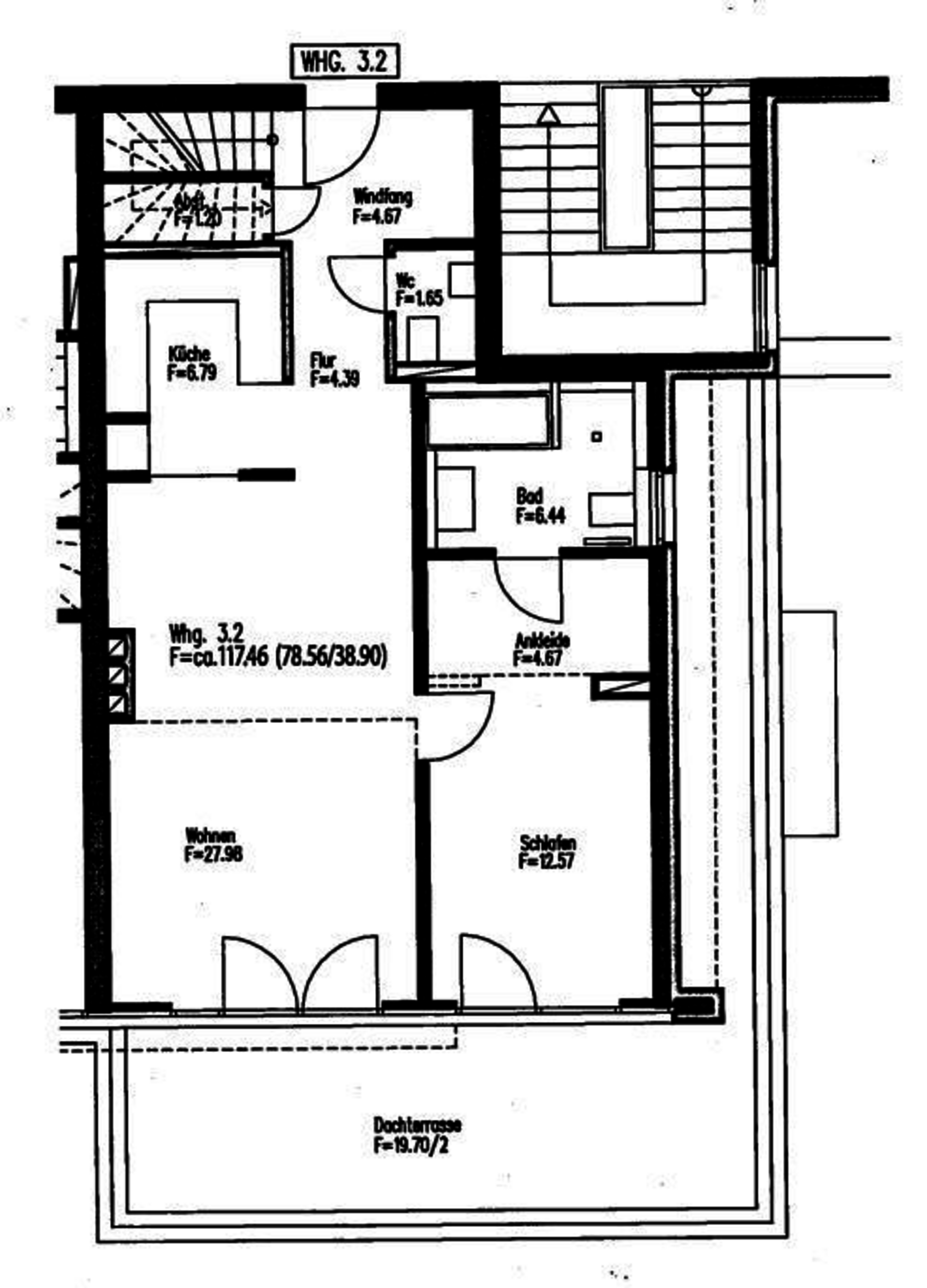
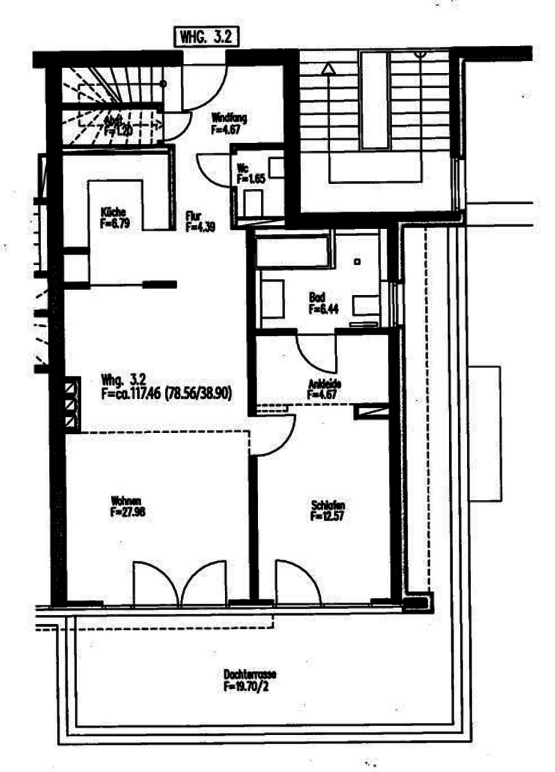
Wohnfläche

107.6 m²

Zimmer

3

Gesamtmiete

1.545 €

Verfügbar ab:

01.03.2026

Objektbeschreibung

Dieses Mietangebot wird im Rahmen unserer Fremdverwaltung angeboten.

 

Sie erhalten eine gepflegte, jedoch unrenovierte Wohnung.

 

Die Einbauküche wird ohne Elektrogeräte mitvermietet und ist im Mietpreis enthalten.

 

Der maßangefertigte Lamellenvorhang kann gegen Abstand vom Vormieter übernommen werden.

Eine Mietentscheidung wird unabhängig davon getroffen.

 

Die besonders energetische Bauweise dieses Hauses ist ein herausragendes Merkmal.

 

Die Wohnung eignet sich besonders für einen 2-Personen-Haushalt.



HIGHLIGHTS DIESER WOHNUNG:

 

Bodenbeläge:

- Parkettboden (Wohnzimmer, Schlafzimmer)

- Fliesenboden (Küche, Bad, Gäste-WC, Flur)

- Teppichboden (Galerie, Zimmer oben)

 

Ausstattung Küche:

- Einbauküche (ohne Elektrogeräte)

 

Ausstattung Badezimmer:

- bodengleiche Dusche

- Wanne

- Fenster im Bad

- Fliesen im Bad

- Fußbodenheizung im Badezimmer

- Gäste-WC

- Handtuchheizkörper

- Leitungen unter Putz

 

Waschmaschinenstellplatz:

- Waschmaschinenstellplatz in der Küche

- Waschmaschinenstellplatz im Keller

 

Außenanlage:

- Balkon

 

Besondere Ausstattung der Wohnung:

- Verdunklungsrollos

- Abstellraum

 

Hausausstattung:

- Gegensprechanlage

- Trockenkeller

- Aufzug

- Fahrradabstellraum

- Treppenhausreinigung

- Isolierverglasung

- Dämmung der Außenwände

- Mieterkeller

- Hausanschluss für Kabelfernsehen

 

Heizung:

- Fußbodenheizung (Gas)

Erkunden Sie das Umfeld der Immobilie